Where Design Meets Music
It’s that time of year again, music lovers from around the world flock to Austin for ACL and countless great performances. Behind every stage and song is an immense amount of planning and creativity, where the worlds of music and design collide. Much like a well-composed track, design thrives on details, rhythm, and harmony. The subtle nuances of a song align with the details of design.
At StudioSIX5, we see this overlap every day, and for me, it’s also part of my personal story.
Where My Story Begins
My name is Hailey Harrison. I joined StudioSIX5 as an intern in 2014, transitioned into a full-time design role, and today I’m a Project Manager and Senior Associate. Over ten years later, I’m reflecting on my early years as a designer and my deep connection to music.
My husband and I purchased our home in Austin in the summer of 2011. We got married in May of that year and, rather than going on a honeymoon, we bought our place and started renovations. As the designer, I’m supposed to be the one with “the vision,” but my husband was actually the one who saw this home and knew it was the one.
The Beginning of Studio 601
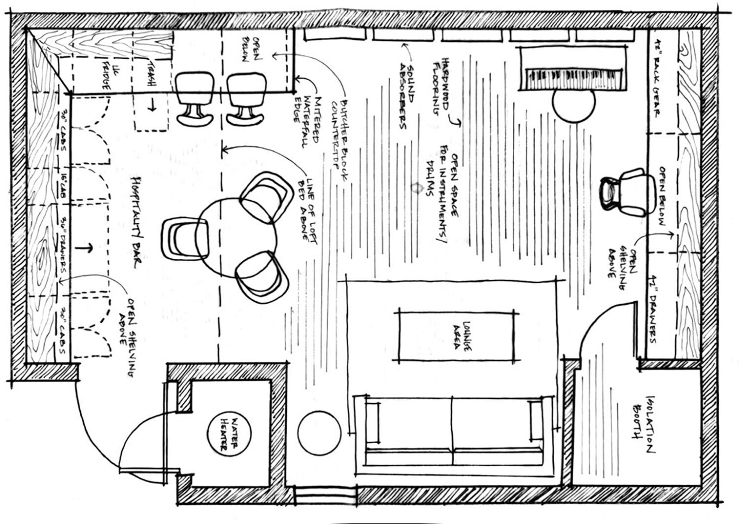
Our home is a small, quaint space in South Austin, about 1,100 square feet with two bedrooms and one-and-a-half baths. But Eric, my husband, had his eyes on the 360-square-foot detached garage.
By 2015, I was settled at StudioSIX5, and Eric was running a live sound business. It was time to build the recording studio he had always dreamed of. So, I took on my husband as a client, and together we began planning and designing what would become Studio 601. I kept a sketchbook in my nightstand and drew renditions of the plans and elevations before bed. We made a budget and watched YouTube videos on DIY construction.
Turning a Garage into a Studio
We wanted a flexible, comfortable space that inspired creativity. The challenge? Making a full recording studio work in just 360 square feet. Instead of separating the tracking and control rooms, we designed an open, live studio with an isolation booth for vocals and instruments when needed.
Eric envisioned a “lived-in, rustic glam” aesthetic. We found reclaimed wood “shorts” for a dollar a square foot and used them for the floors, a feature wall, and a dropped ceiling at the entry. We raised the structural collar ties for a vaulted ceiling, built tufted velvet wall panels for absorption, and added cabinetry and counters for functionality.
Personal Touches, Creative Details
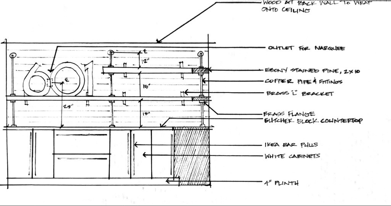
The studio came to life with texture and personality: black-stained open shelving with copper pipe supports, custom art and a handmade marquee sign, and repurposed furniture for built-ins. I created an abstract painting inspired by sound waves, framed with hidden acoustic insulation, and painted a portrait of Buddy Holly to pay homage to our hometown pioneer of rock & roll.
With everything in place, Studio 601 was operational. In January 2016, Eric and his business partner, Michael Ingber, hosted their first recording session. Nearly a decade later, they’ve recorded hundreds of artists, and Studio 601 has become a staple in the Austin music scene.
Collaborative, Creative Community
We recently renovated the isolation booth and the courtyard connecting our home and studio, adding a faux green wall, lounge seating, and dining areas that serve as a creative retreat for guests. Every day I come home to musicians and artists filling the space with life, sound and sparking new collaborations.
During COVID, Eric and Michael began producing projects for singer-songwriters Marco Gutierrez and Daniel Davis. Those collaborations that began as side projects, grew into something larger, they joined forces and formed the band the West Texas Exiles adding Trinidad Leal on drums and singer-songwriter, Colin Gilmore, son of son of country legend Jimmie Dale Gilmore.
All five members hail from West Texas—Lubbock, Amarillo, and El Paso—and together they’ve developed a powerful Americana sound shaped by three distinct songwriters. Their debut album, 8000 Days, produced and recorded at Studio 601, was released on September 12, 2025, and has already reached #14 on the Americana charts.
When Design Inspires Connection
Without Studio 601, this collaboration and others might never have happened. The band has since worked with artists like Kelly Willis, Jeret Reddick of Bowling for Soup, and Jonathan O’Neal of Jamestown Revival.
It’s a reminder that design and music share the same heartbeat—both create spaces, sounds, and experiences that bring people together.
Explore West Texas Exiles on Instagram and follow their journey as it evolves.
The StudioSIX5 Connection
StudioSIX5 designs spaces that, much like music, strike a chord—sparking creativity and bringing people together.













